El gigante Marcel Breuer

Está el concepto principal y está el de los detalles; entre ambos exactamente se mueve el diseño del edificio. Sin estos dos primeros conceptos básicos ni el sentido común, ni la experiencia, ni el gusto ni el trabajo son suficientes.

Es un arquitecto y diseñador industrial húngaro de origen judío.

Uno de los principales maestros del  Movimiento Moderno que muestra gran interés por la construcción modular y las formas sencillas.

Tras interrumpir sus estudios en la Academia de Bellas Artes de Viena, Marcel Breuer (1902-1981) se matricula en 1920 en la Bauhaus para cursar ebanistería.

Unknown photographer, Walter Gropius and Ise Gropius, ca. 1927-28. La formación en arquitectura de Breuer en la Bauhaus fue en gran medida a través del trabajo realizado de aprendiz con Walter Gropius, ya que la escuela no ofreció ningún programa formal de arquitectura durante esos primeros años. Breuer ganó mucha experiencia práctica colaborando con varios proyectos de  muebles y diseño de interiores; Sommerfeld House (1921), the Haus am Horn exhibition house (1923), y the Bauhaussiedlung housing project (previsto en 1922,  pero no construido)
Diagram of the curriculum at the Bauhaus (trans.), design: Walter Gropius, 1923. Bauhaus-Archiv Berlin / © VG Bild-Kunst Bonn, 2016
Tiene gran influencia de Paul Klee. Greeting 1922 Paul Klee
Senecio 1922 Paul Klee
Breuer fue uno de los seis aprendices que se unieron al taller de nuevo mobiliario en el verano de 1921. Tenía 19 años. Su primera pieza fue la silla Romántica (también conocida como silla Africana), que esculpió y pintó a mano dándole forma de grandioso trono.
PicturHacia 1923, cuando se licenció, su trabajo estaba muy influenciado por la estética abstracta del grupo artístico holandés De Stijl, que se dejaba ver en sus muebles de tablones de madera como la silla de láminas.
En 1924 viaja a París. Breuer dejó Bauhaus por Paris donde trabajó en un estudio de arquitectura  de Pierre Chareau intentando “hacer todo lo posible para olvidar los prejuicios de Bauhaus”. Paris fue un nuevo desencuentro y cuando Gropius le llamó para poner en marcha el taller de mueble en la nueva Bauhaus de Weimar, Breuer dijo que sí.Al año siguiente de marcharse a París ya estaba de vuelta en Weimar para aceptar un puesto como instructor y jefe del taller del mueble de la Bauhaus. Además de participar en el diseño de muebles y  en el diseño de interiores para los nuevos edificios de la Bauhaus en Dessau, contribuyó al diseño y mobiliario de la cafetería y  teatro. Breuer también desarrolló en este tiempo esquemas arquitectónicos innovadores para una serie de casas para los miembros de la facultad junior,  the BAMBOS houses (1927).

Pronto accede, en 1925, a la dirección de los talleres de ebanistería.

Life at the Bauhaus Weimar. Bauhauslers and guests, Bauhauslers: Oskar and Tut Schlemmer, Casca Schlemmer, Gunta Stölzl, Benita Koch-Otte, Marcel Breuer, Josef Albers, Josef Hartwig, Kurt Schmidt, guests: Willi Baumeister, Werner Gilles (?), photo: unknown / Carl Schlemmer (?), ca. 1922. Bauhaus-Achiv Berlin
En 1925, con sólo 23 años, Breuer logró una gran revolución para el diseño de muebles: fabricaba las primeras sillas y mesas con tubo de acero, su trascendental aportación a la historia del mobiliario.
Mientras era director del taller de ebanistería en la Bauhaus, en Dessau, la fábrica de acero alemana Mannesmann había logrado un proceso que permitía doblar tubos de acero sin que se rompieran. Con este proceso se comenzó a aplicar para la realización de diversos objetos, como por ejemplo la bicicleta Adler, que sirvió a Breuer de inspiración.
Imagen : Aprendiz en el taller de metal en la fábrica de aviones Junkers , Dessau , sobre 1926
Los muebles de tubo de Breuer provienen de la mirada atenta a las bicicletas Adler que se realizaban con la tecnología de Mannesmann. La F 41E es un diseño que Breuer realizó en 1922, fruto de la combinación de una bicicleta con un mueble. Los planos finales son del año 1928, pero este proyecto,sin embargo, se mantuvo en el papel durante mucho tiempo hasta que en 1984 Tecta comenzó a fabricarlo. La F41E es casi un vehículo al aire libre que permite al usuario relajarse sobre una superficie de mimbre y realizar ciertos movimientos ayudados con cinco pequeñas ruedas y una cadena de bicicleta.
Tabouret 1919
tabouret B9 ,  1925
La “Casa de Horn”, llamada por el lugar donde fue ubicada, fue ideada, construida y decorada por la Bauhaus, es el primer ejemplo realizado en Alemania de una nueva forma de vivir. El espacio central, es el punto de organización del proyecto y además es la puesta en práctica del ideal moderno, el cual se basaba en la máxima liberación de los espacios  a través de la organización espacial de cada uno de los muebles y objetos decorativos, los cuales en este proyecto, son únicamente formas radicalmente sencillos y paredes desnudas (sin cuadros) las cuales determinaban las habitaciones de la casa . Espacios donde predomina el color blanco  y en contra posición a ello se incorporan una serie de muebles de Marcel Breuer y una alfombra de Martha Erps-Breuer  , los cuales fueron construidos únicamente para la presentación de este proyecto. http://unalhistoria3.blogspot.com/2013/07/haus-am-horn-1923-weimar-alemania.html
Martha Erps rug – 1923

Diseña muebles de tubos metálicos, entre ellos su primera silla de tubos de acero B3, llamada Wassili; simultáneamente elabora sus primeros proyectos arquitectónicos.

Mientras era director del taller de ebanistería en la Bauhaus, en Dessau, Alemania. En aquellos momentos la fábrica de acero alemana Mannesmann, había logrado un proceso que permitía doblar tubos de acero sin que se rompieran. Con este proceso se comenzó a aplicar para la realización de diversos objetos, como por ejemplo la bicicleta Adler, que sirvió a Breuer de inspiración para la silla B3. La silla es un tubo continuo, plegado, sin junta más que en la unión de sus extremos.
 
En 1925 diseñó la silla B3 o silla Wassily. Probablemente inspirada en el manillar de una bicicleta, fue la primera silla en la historia construida con tubos de acero. Con su diseño Breuer consiguió una obra maestra de la unión entre metal y tela o cuero y una transparencia y ligereza en los volúmenes que supuso toda una revolución para la época.
A pesar de la creencia popular, Marcel Breuer no diseñó esta silla para el pintor Wassily Kandinsky, colega de Breuer en la facultad Bauhaus. Fue el propio Kandinsky el que admiró el diseño final de la misma y Breuer decidió realizar una copia adicional para que la disfrutara el artista en su casa. Cuando la silla se relanzó en 1960, el fabricante italiano encargado de realizarla decidió bautizarla como «Wassily«, ya que era conocedor de que Kandinsky poseía uno de los modelos originales. La edita Knoll.
Marcel Breuer and Martha Erps-Breuer, 1926
Marcel Breuer, Martha Erps, Katt Both and Ruth Hellos, from the Bauhaus school in Dessau, 1927
Bauhaus Masters on the roof of the Bauhaus building: Josef Albers, Hinnerk Scheper, Georg Muche, László Moholy-Nagy, Herbert Bayer, Joost Schmidt, Walter Gropius, Marcel Breuer, Wassily Kandinsky, Paul Klee, Lyonel Feininger, Gunta Stölzl, Oskar Schlemmer, photo: unknown 1926
12 Chairs by Marcel Breuer for Thonet No.B33 designed 1927-1928
Breuer desarrolla en 1926 una silla con el nombre de B5 para Standard-Moebel.
table with sawhorse, 1926 and chairs B5 and B11
Marcel Breuer, table with sawhorse, 1926 and chairs B5 and B11, 1927. From the estate of Florence Henry. © Gallery Ulrich Fiedler, Berlin. In her apartment, 1931. Foto Galleria Martini & Ronchetti, Genua. © Kunstsammlung NRW
1928 students bauhaus dessau
Herbert Bayer, Xanti Schawinsky und Marcel Breuer am Strand, 1928. © Herbert Bayer (Austrian, 1900–1985)
La silla B32 más conocida como Cesca o Ceska –en honor a su hija Francesca (a quien adoptó con 3 años en 1959) –  es otro diseño emblemático de Breuer que data de 1928. Forma parte de su producción de muebles de acero tubular cromado y aporta un elemento diferencial e innovador: el acabado en rejilla de junco trenzado que utiliza en respaldo y asiento.
La silla Cesca se basa en el concepto cantiléver (silla volada sobre dos patas que al llegar al suelo se unen) cuya autoría se atribuye al arquitecto holandés Mart Stam, quién a su vez se inspiró en la silla construida con tubos de gas y agua que ya Gaudillot prototipó en 1844. En realidad Breuer nunca patentó la silla que originalmente fue producida por Thonet y en la actualidad  también por Knoll.
El diseño original carecía de brazos pero en la actualidad la mayoría de fabricantes la ofrecen con ellos.La silla se exhibe en la colección permanente del MoMA de NYC.
El diseñador alemán había utilizado anteriormente el tubo de acero en otra mítica pieza, la silla Wassily, pero la idea de un asiento que no se apoya sobre cuatro patas no fue exclusiva suya. Los arquitectos Mart Stam y Mies van der Rohe habían presentado al público modelos de cantilever o voladizo, pero se trataba de piezas rígidas que él mejora al sumar a la resistencia y flexibilidad de la estructura de acero la elasticidad del mimbre. Aunque tuvo que hacer frente a una serie de demandas por parte de Stam – Breuer contrarrestó alegando que su taburete en forma de U para la cantina de la Bauhaus, si se colocaba tumbado, ya anticipaba el principio de este tipo de asientos–, consiguió con la Cesca un gran éxito comercial.

En 1928 abre un despacho en Berlín, se dedica al interiorismo y al diseño de muebles y en 1932 construye su primera casa, la Harnischmacher en Wiesbaden.

En 1929 nace la silla S35, con el mismo esquema compositivo y ligereza visual que las dos anteriores. Este modelo emplea de nuevo la rejilla en el asiento y desde la década de los 30 la produce Thonet con un reposapiés a juego.
Untitled, 12/11/03, 2:53 PM, 16C, 3450×4776 (600+0), 100%, AIA repro tone, 1/50 s, R58.9, G46.8, B59.3
Show apartment on the Werkbund ‘Neubühl’ housing project, Zurich, around 1934
Arthur Korn, Marcel Breuer, Ise Gropius and Walter Gropius at Lawn Road flats in Camden, London 1935En 1935 Breuer sigue a su amigo y mentor Gropius hasta Inglaterra, donde forma un estudio conjunto con los arquitectos F.R.S. Yorke en Londres. Creó una línea de muebles de madera contrachapada que se comercializa a través de Jack Pritchard Isokon de Control Ltd.

La casa es blanca, de dos plantas y de cubierta plana; parte de ella y las terrazas se alzan libremente sobre soportes.

Después proyecta los apartamentos Doldertal de Zúrich (1933-1936) con Alfred y Emil Roth.

En 1935 se exilió en Inglaterra, donde, como consecuencia de uñas condiciones laborales restrictivas, se asoció con F.R.S. Yorke para abrir un estudio.

Isokon chair, long chair and table , designed by Marcel Breuer, 1935
A room at the Ventrice apartment, London, 1936.
1936 – TheGane Pavilion House, Bristol, England. Built by Breuer and York for PE Gane Ltd., a Bristol furniture manufacturer with a Modernist line. The house was built for the Royal Agricultural Show in Ashton Park just outside Bristol and was demolished when the show closed.

En 1937 se estableció definitivamente en Estados Unidos, donde Walter Gropius  le consiguie una cátedra en la Universidad de Harvard.

Gropius, Schawinsky, Breuer and others imitating the sculpture Laocoön and His Sons in 1937. ©Tamas Breuer, Courtesy of Marcel Breuer Papers, Special collections research center, Syracuse University Libraries

Finalmente, en 1937, Breuer emigra a EEUU (1937), como muchos de los arquitectos modernistas europeos del periodo de entreguerras, entre ellos sus dos maestros, Mies van der Rohe y el propio Gropius. A los Estados Unidos llega junto a Walter Gropius y otros tantos arquitectos europeos, escapando de la persecución nazi después de pasar unos meses en Londres. Nuevas perspectivas de trabajo, pero sobre todo la libertad, la tranquilidad que en Europa no tenían, les obliga a dar el que será el paso más importante en su vida.
Es asombroso que llegue a EEUU con sólo 35 años y con tanto trabajo a sus espaldas.

 Ambos mantienen un estudio común y proyectan, entre otras, la casa Hagerty en Cohasset, Massachusetts (1937), con la combinación de elementos modernos y materiales tradicionales típica de Breuer.

Entre 1938-1941 trabajó con Walter Gropios en un estudio de arquitectura en Lincoln, Massachusetts. A pesar de ser considerado en su época como uno de los diseñadores de muebles e interioristas más notables de la vanguardia europea, Marcel Breuer se veía ante todo como arquitecto.
Walter Gropius on the screened porch of his house in Lincoln, 1937. Photo: Robert Damora. Marcel Breuer Archive
1938 – The John Hagerty House, aka the Josephine Hagerty House, 357 Atlantic Avenue, Cohasset MA. Summer house for the client’s mother. Designed with Walter Gropius.
1939 – The James and Katherine Morrow Ford House, 10 Woods End Road, Lincoln MA. Designed with Walter Gropius.
1939 – The Edward and Margrit Fischer House and Studio, aka Waldermark, 1300 Wrightstown Road, Newtown PA. Designed with Walter Gropius. The Fischers were friends of Breuer and Gropius from the Bauhaus days.
1940 – The Chamberlain Cottage, 68 Moore Road(aka Wayside Road), Wayland (aka Sudbury) MA. Designed withWalter Gropius.
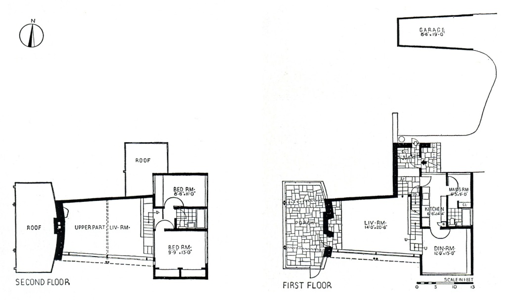
Casa Breuer nº 1. Lincoln, Massachusetts, 1938-39
La casa Breuer 1 se compone de tres cuerpos yuxtapuestos. El central es un salón de planta trapezoidal y doble altura, con fachada acristalada al sur, flanqueado al oeste por una veranda y al este por un ala de dos plantas, que aloja abajo la cocina- comedor y arriba los dormitorios.
La característica más notable de esta casa es que, siendo pequeña, parece grande. Este efecto se consigue al abrir al gran salón central, de doble altura, los espacios adyacentes al mismo. La vista, de este modo, no se detiene en los confines del gran espacio central, sino que se prolonga varios metros más allá, hasta la cara interior de la fachada este de la casa. La continuidad espacial y la profundidad adicional que aportan las piezas adyacentes al gran espacio central se aprecian bien en una foto (1) en la que vemos a Constance de pie a mitad de la escalera y a Marcel en primer plano, con un cigarro en la mano y sentado en un sillón de madera contrachapada curvada, de la serie Isokon, diseñada por él unos años antes, en Londres. Para la foto han tenido que apartar el sofá, que hubiese evidenciado las reducidas dimensiones del salón.
Pero el tamaño no era un obstáculo para recibir a los amigos, ni para colgar del techo un móvil de CalderIse Gropius y su hija Ati, sus vecinas, aparecen en una foto  (2) de 1940 con Herbert Bayer, maestro tipógrafo de la Bauhaus. En otra  (3) vemos sobre la estantería a Dottie Noyes, propietaria de New Design, tienda de muebles contemporáneos de Nueva York, y sentado en el rellano de la escalera, leyendo, a Christopher Tunnard, uno de los fundadores del paisajismo moderno.
Plas-2-Point prefabricated house, elevation drawings, designed by Marcel Breuer, 1942
Plas-2-Point prefabricated house, scale model, designed by Marcel Breuer, 1942
1944 – The Aluminum City Terrace Housing Project, East Hills Drive, New Kensington PA near Pittsburgh.
En 1944 adopta la ciudadanía estadounidense. Los primeros años como independiente continua con el estudio en Cambridge hasta la primavera del 1946,  tras dejar Harvard, decide trasladarse definitivamente a Nueva York, abre un estudio en Manhattan en el  438 East Eighth Street. 438 E 8th St, New York
Cars parked in front of four Navy uniform stores on Sand Street, Brooklyn, NY – March 1946 – Photographer: Andreas Feininger – LIFE Magazine Archive
Manhattan Bridge from Pike Street, New York, 1946
Marcel Breuer, Mercedes Matter, Konrad Wachsmann, Alexander Calder and others, ca. 1950 / unidentified photographer. Marcel Breuer papers, 1920-1986. Archives of American Art, Smithsonian Institution.
Alexander CalderBrooch for Connie Breuer. c. 1955. Hand-hammered silver and steel wire. This brooch with the initials «CB» was made for Connie Breuer, the wife of architect Marcel Breuer. It has remained in the family since it was created.
La década de los 50 supone para Marcel Breuer el asentamiento definitivo de su arquitectura y empiezan a llegar al despacho los grandes encargos: la abadía y universidad de St.John, el edificio de la UNESCO en París, o el Whitney Museum de Nueva York, por lo que a finales de la década decide ampliar el despacho, hasta entonces formado por tan sólo seis personas.
Entre la veintena de nuevos colaboradores, mucha gente joven y de todas las procedencias: rusos, chinos, japoneses, italianos, franceses, alemanes, ingleses, y algún que otro americano. Breuer se encontraba como pez en el agua en la ciudad más cosmopolita del mundo. Finalmente, cuatro jóvenes arquitectos pasan a ser socios de la firma que, aún en la actualidad, sigue trabajando con el nombre de MB Associates. Hasta el año 1979 siguió asistiendo, sólo dos años antes de su muerte, con mayor o menor frecuencia, a su despacho de la Tercera Avenida. Gustaba de comentar y discutir cada uno de los dibujos de sus colaboradores. Por otro lado, nunca abandonó los encargos de viviendas unifamiliares, en los que “a pesar de no ser rentables”, era posible un mayor nivel de experimentación y de acercamiento al detalle. La búsqueda, el cambio, el trabajo mano a mano con el cliente, sólo eran posible en estos pequeños encargos. Lo que si dejó de hacer fue, a excepción de casos puntuales, el diseño de muebles. Consideró que ya el mercado ofrecía suficientes artículos de calidad, y la carrera por la productividad se alejaba de su formación más artesanal.

A partir de 1946 Breuer realiza proyectos de mayor envergadura desde su nuevo estudió de Nueva York, como el edificio de la UNESCO en París (1952-1958), en colaboración con Pier Luigi Nervi y Bernar Zehrfuss.

La Maison de l’Unesco,  1955-1958 (Breuer, Nervi et Zehrfuss). Paris
En 1953, recibe el encargo de construir la sede de la UNESCO en París junto al ingeniero estructural italiano Pier Luigi Nervi y el arquitecto francés Bernard Zehrfuss. En este edificio, Breuer abandonaría la madera natural y la piedra de sus casas para experimentar con las formas monumentales en cemento que él mismo bautizaría como “escultura de hormigón”.
Untitled, 12/11/03, 2:53 PM, 16C, 3450×4776 (600+0), 100%, AIA repro tone, 1/50 s, R58.9, G46.8, B59.3
Abbey Church of St John’s University, Collegeville, Minnesota, 1955-58

Construye asimismo la Universidad St. John’s de Collegeville, Minnesota (1953-1961); el centro de investigación de IBM en La Gaude, Francia (1960-1982), y el Museo de Arte Americano Whitney en Nueva York (1963-1966).

En 1956, con el gran auge que toma el estudio y los grandes proyectos que entran en su oficina, Breuer se asoció con sus colegas, varios de los arquitectos jóvenes y con talento que trabajaban para él. Operando a partir de entonces como Marcel Breuer y Asociados. En 1967 Herbert Beckhard, Hamilton Smith y Robert Gatje eran oficialmente sus socios. Más tarde, Tician Papachristou también alcanzó la categoría de socio de la firma.
Dino Gavina (left), Marcel Breuer (middle) and Maria Simoncini(right) in Bologna (1963). Photo © Walter Breviglieri
A mediados de los años sesenta, Breuer establece su estudio en el 635 Madison Avenue, en Nueva York, y en 1964 abre un estudio en París, en la Rue Chapon en el antiguo distrito de la moda de París, una oficina dirigida por Robert Gatje y más tarde a cargo de Mario Jossa. Durante estos años, las colaboraciones de Breuer con Smith, Gatje, Beckhard y Papachristou alcanzaron su punto máximo productivo, una lista de proyectos formidable y diversa : el complejo de IBM Francia, complejo Flaine, el edificio Armstrong Rubber , el Museo Whitney de Arte, los edificios de HUD y HEW en Washington, DC y la iglesia y el refectorio de San Francisco de Sales , la Casa Soriano y la Casa Stillman  III.
Marcel Breuer in his garden with his dog, 1966.
Whitney Museum of American Art en Nueva York , 1964-66
En 1966 el Whitney se asentó en la Avenida Madison con la Calle 75 del Upper East Side de Manhattan. El edificio fue proyectado y realizado entre 1963 y 1966 por Marcel Breuer y Hamilton P. Smith en un estilo particularmente moderno. Al edificio se le distingue entre los edificios colindantes por su fachada de granito escalonada y sus ventanales exteriores hacia afuera.
¿Qué debe ser un museo, un museo en Manhattan? Es más fácil decir primero qué es lo que no debe parecer. No debe parecer un negocio o un edificio de oficinas, no debe parecer un lugar luminoso de espectáculo. Debe transformar la vitalidad de la calle en la sinceridad y profundidad del arte.
Marcel Breuer, “Comments at the Presentation of the Whitney Museum Project”
Left to right: Museum director Lloyd Goodrich with Flora Miller Irving, architect Marcel Breuer, and Flora Whitney Miller at the announcement of the plans for the new building, December 11, 1963.
Untitled, 12/11/03, 2:53 PM, 16C, 3450×4776 (600+0), 100%, AIA repro tone, 1/50 s, R58.9, G46.8, B59.3

Gössel, P. (2007). The A-Z of Modern Architecture (Vol. 1). Deutscher Taschenbuch Verlag

https://es.wikipedia.org/wiki/Marcel_Lajos_Breuer

https://es.celeb-true.com/marcel-lajos-breuer-world-famous-modernist-architect-designer

Publicado por ilabasmati

Licenciada en Bellas Artes, FilologÍa Hispánica y lIiteratura Inglesa.

2 comentarios sobre “El gigante Marcel Breuer

Deja un comentario