En tiempo de guerra, un año corresponde a cincuenta años













La libertad del artista siempre ha sido» individual «, pero la verdadera libertad sólo puede ser colectiva. Una libertad consciente de las responsabilidades sociales, que puede derribar las fronteras de la estética
5 de diciembre de 1914, Roma, Italia-20 de marzo de 1992 São Paulo , Brasil



Lina Bo Bardi (1914-1992) estudió en Roma, donde en 1940 obtuvo su licenciatura. Ya durante la carrera dibuja para el despacho de arquitectos del que es su profesor, Marcello Piacentini.

Después trabaja para Gio Ponti en Milán, en la redacción de la revista Domus, y asimismo colabora en la organización de la Trienal.

1940 abre con Cario Pagani un despacho de arquitectos en Milán.

1946, Bo Bardi emigra a Sudamérica donde conoce a Oscar Niemeyer, Lucio Costa y otros representantes de la arquitectura moderna.


La primera obra que realiza fue su propia casa, hecha de cristal en el barrio de Morumbi de Sao Paulo (1950-1951).

En 1950 creó la revista Hábitat, y en 1951 diseñó su propia residencia, la famosa Casa del Vidrio en el barrio de Morumbi en Sao Paulo, considerada una de las obras paradigmáticas del racionalismo artístico en Brasil.



El salón de esta casa, situada en una pendiente, flota sobre finos pilares mirando al jardín y expuesto a la vista tras una fachada de cristal.


Sin embargo, la residencia ofrece también un espacio privado oculto tras el patio.


El Museo de Arte de Sao Paulo (1957-1968) sigue una concepción doble.

Por un lado, el edificio principal de dos pisos yace plano en medio del parque que lo rodea.

Encima, dos poderosos estribos de hormigón rojo sujetan un cuerpo arquitectónico accesorio en suspensión.

A la altura de la calle queda un área pública libre.

Esa solución tan radical responde a la intención de conservar el eje visual a lo largo del parque, al menos desde un punto de vista formal.





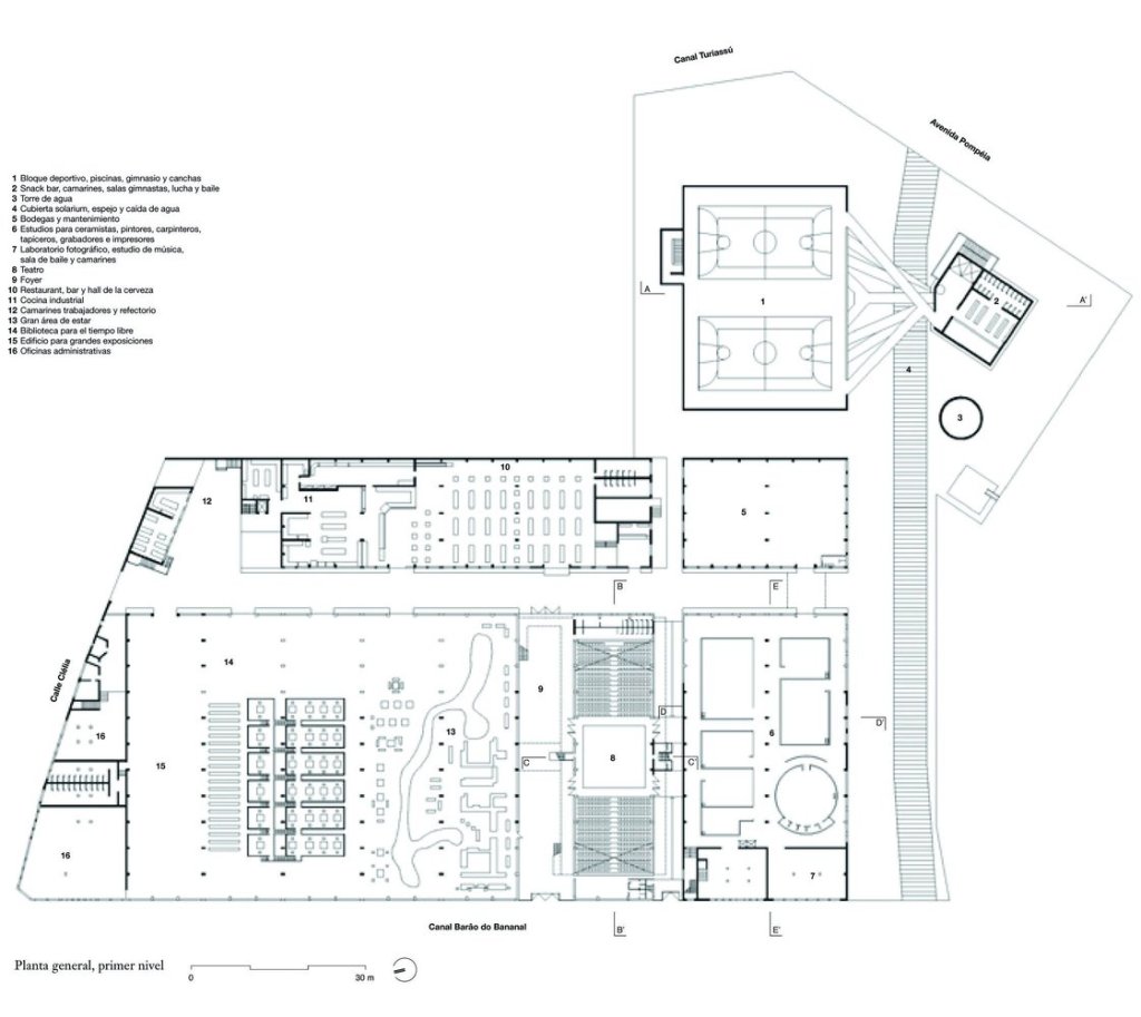
Para el encargo de planificar un centro de recreo y deporte en los terrenos de la fábrica SESC de Pompéia (Servicio Social do Comercio), Sao Paulo (1977-1986), Bo Bardi renuncia al derribo.


Las viejas naves industriales se remodelan y se completan con nuevas construcciones.

Sobre el terreno sobrante, la arquitecta construye hada las alturas.

Así surgen dos edificios de hormigón.

Visto; unidos entre sí por varias pasarelas, el edificio de mayor tamaño acoge una piscina y cuatro pabellones de deporte en varias plantas superpuestas.

El revestimiento rojo de las rejas tras las ventanas de formas libres indica que aquí ya no se llevan a cabo tareas industriales.































Las mismas ventanas aparecen en el edificio del restaurante Coatí de Ladeira da Misericordia en Salvador (1987-1990).
Este local es parte de un proyecto de restauración del casco histórico.
La construcción de elementos de hormigón prefabricados de formas onduladas se levanta sobre un pequeño terreno junto a los edificios preexistentes.
Actualmente, todos los documentos de proyectos, fotografías, dibujos, modelos, bocetos, objetos, textos y películas de proyectos construidos y no construidos están en su colección en el Instituto Lina Bo y P. M. Bardi, ubicado en la residencia donde la pareja vivió durante décadas

La arquitectura es creada, «inventada de nuevo», por cada hombre que anda en ella, que recorre su espacio, subiendo las escaleras, o descansando sobre una barandilla, levantando la cabeza para oler, abrir o cerrar una puerta, sentarse o levantarse a tener un contacto íntimo y al mismo tiempo crear «formas» en el espacio; el ritual primitivo desde el cual surge la danza, la primera expresión de lo que sería el drama. Este contacto íntimo, ardiente, que una vez fue percibido por el hombre, está ahora en el olvido. Los lugares habituales y comunes hicieron al hombre olvidar la belleza de su «movimiento en el espacio», su movimiento consciente, de mínimos gestos, de menos actitud…– Lina Bo Bardi


https://archxde.com/arquitectos/bo-bardi-lina/
https://www.elmundo.es/cultura/cine/2018/11/05/5bdf25cf46163fc4508b4641.html
Gössel, P. (2007). The A-Z of Modern Architecture (Vol. 1). Deutscher Taschenbuch Verlag.
https://www.cotilleando.com/threads/pintura-museos-exposiciones.123381/page-17
https://www.metalocus.es/es/noticias/lina-bo-bardi-together-en-el-daz
https://elpais.com/elpais/2014/08/05/del_tirador_a_la_ciudad/1407217740_140721.html#?rel=mas
https://www.fmirobcn.org/es/exposiciones/5747/lina-bo-bardi-dibuja
