Souto de Moura, Casa en Moledo, Portugal. Muy cerca de la desembocadura del río Miño, justo al otro lado de la frontera con España, se encuentra el pequeño pueblo portugués de Moledo do Minho: un emplazamiento costero idóneo para una casa familiar, levantada aquí sobre un antiguo terreno de labranza en pendiente, en un solar con buenas vistas sobre el océano Atlántico.
Eduardo Souto de Moura, también conocido como Eduardo Elísio Machado Souto de Moura, es un arquitecto nacido en Portugal el 25 de julio de 1952.
Álvaro Siza, el primer ganador de este premio (1992), dice cuando Souto de Moura gana el Pritzker:
El premio hace justicia y para mí, supone una gran alegría. Su trabajo es de un gran rigor, de una gran exigencia. No conozco ninguna obra de su firma que sea descuidada. En todas sus labores, hay siempre una gran atención a la inserción. No son piezas aisladas, sino que forman parte de un tejido. Es una arquitectura que tiene pasado y visos de futuro.
Mientras estudia en la Escuela Superior de Bellas Artes de oporto, Edouardo Souto de Moura (1952), trabajaba para Álvaro Siza.
1980 abre un estudio en Oporto, en cuya universidad da clases entre 1981-1991.
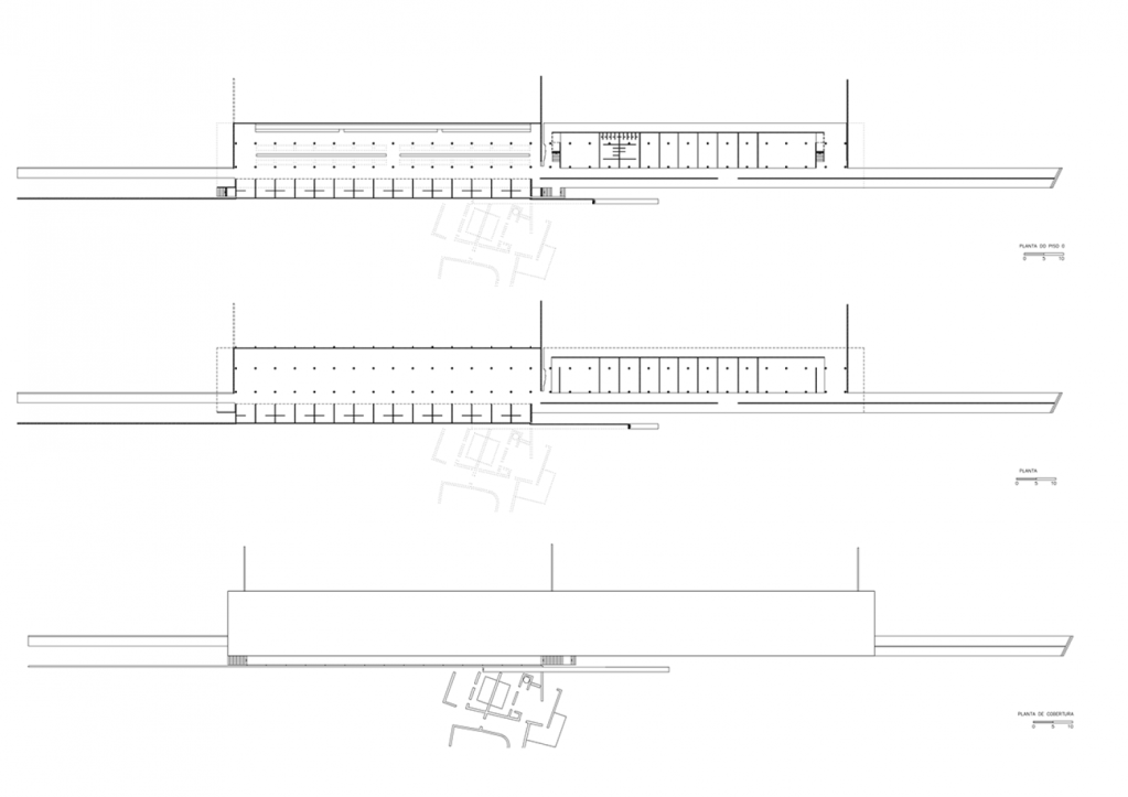
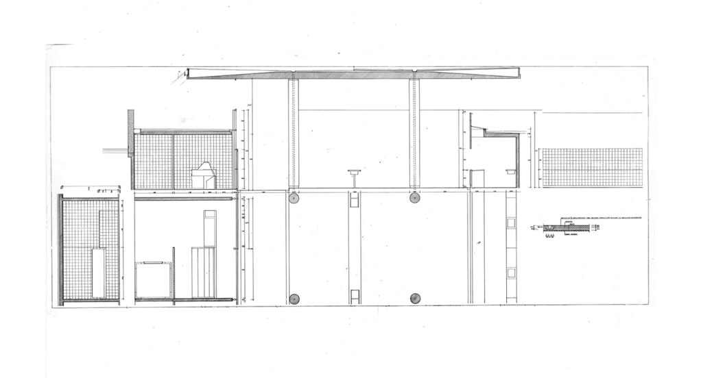
La idea central del proyecto es acomodarse a la pendiente del lugar integrándose en las terrazas preexistentes: una propuesta muy similar a la experiencia de la Casa en Baião (1990-1993), pero que en este caso contaba con la dificultad añadida de que los bancales estaban muy juntos, con escalones demasiado estrechos y bajos para edificar. Por ello, una de las primeras decisiones fue remodelar la ladera construyendo menos bancales, pero más anchos, sostenidos por muros de contención de piedra. La casa se inserta en uno de estos bancales, excavado para acoger el programa entre dos muros paralelos de vidrio y generando con ello dos fachadas radicalmente diferentes: una, alineada con el muro de piedra del bancal y con vistas al mar; y la otra, interior, orientada al patio de contornos irregulares resultante de la excavación.
Su obra se caracteriza por unas formas arquitectónicas claras, sin adornos superfluos y por unos espacios que se alimentan de contrastes en los materiales.
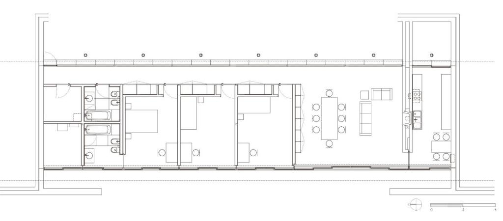
El programa de la casa, convencional (un salón, una cocina, y una batería de dormitorios), se adapta con naturalidad a estos condicionantes topográficos. Así, el salón ocupa una posición central, con fachadas a ambos lados de la construcción. La cocina se sitúa de un lado, prolongada en un patio de servicio, mientras que los dormitorios, en el lado opuesto, se adosan al frente con vistas al mar, dejando libre su parte posterior para un pasillo de circulación con dramáticas vistas a la roca. La distinta naturaleza de las fachadas también queda manifiesta en el plano constructivo, con carpinterías de madera en la cara abierta al mar y metálicas en la posterior.
Al principio de su carrera proyecta el Mercado de Braga en Portugal (1980-1984) que integra los muros conservados de un edificio antiguo.
El lugar era ese y sólo ese. Una granja vallada en medio de la ciudad. En el centro del solar, una colina. En su cima, una casa. Era el punto de encuentro de dos caminos, ejes ortogonales del terreno que lo conectaban con la ciudad. Si el encuentro era ahí, en la casa, el mercado debía levantarse ahí. Si el camino era recto, el mercado se situaba ahí, nivelado entre dos muros de carga. En el exterior poco ha cambiado. En el interior, al pasar, es tan sólo una cuestión de escoger un un recorrido entre los pilares. Hace veinte años, cuando proyecté el mercado, la idea era construir una calle cubierta, un fragmento de la ciudad capaz de proponer una retícula urbana. Esta retícula ocurrió excesivamente, y el mercado pereció asfixiado entre escuelas, discotecas y la especulación desenfrenada. A lo largo de los años, y tras varias visitas al lugar, comprendí que el mercado se utilizaba como un puente, una calle, una conexión necesaria entre dos ejes de la ciudad. En este proyecto propongo retirar la cubierta, diseñar un jardín, una calle y construir un programa «cultural» sobre lo poco que queda. Hoy ha muerto Aldo Rossi. Debo mencionar uno de sus textos que me sirvió como base para mi propio proyecto, sobre la inversión de usos, de la escala, del Palacio Diocleciano de Split. Eduardo Souto de Moura. Vivienda para tres familias, Quinta do Lago, Almancil, Algarve (1984-1989).
Dos cuerpos de edificios encajados entre sí y angulosos, de piedra natural uno y de hormigón y cristal el otro, se unen en la casa de Bom Jesus de Braga (1989-1994).
Eduardo Souto de moura, Casa del Bon JesúsEduardo Souto de moura, Casa del Bon JesúsEduardo Souto de moura, Casa del Bon Jesús
Vuelve a combinar distintos materiales, como madera, cristal y piedra en La casa de Moledo (Portugal) entre 1991-1998, integradas en un paisaje con sensibilidad.
El programa de la casa, convencional (un salón, una cocina, y una batería de dormitorios), se adapta con naturalidad a estos condicionantes topográficos. Así, el salón ocupa una posición central, con fachadas a ambos lados de la construcción. La cocina se sitúa de un lado, prolongada en un patio de servicio, mientras que los dormitorios, en el lado opuesto, se adosan al frente con vistas al mar, dejando libre su parte posterior para un pasillo de circulación con dramáticas vistas a la roca. La distinta naturaleza de las fachadas también queda manifiesta en el plano constructivo, con carpinterías de madera en la cara abierta al mar y metálicas en la posterior.La cubierta plana es, sin embargo, el elemento compositivo más relevante del proyecto. Concebida como una pieza formalmente independiente, lo que queda acentuado por su condición de ‘tapa’ apoyada sobre los muros del bancal, la cubierta es una quinta fachada visible desde lo alto de la colina. Constructivamente, está formada por una losa de hormigón armado sobre la que se ha dispuesto una lámina impermeabilizante, aislamiento térmico y una capa rígida de grava. Sobre ella se apoyan, como pequeños objetos sobre una mesa, las necesarias chimeneas y aparatos de instalaciones, acabados en acero inoxidable. De esta forma, la losa restituye la topografía ‘original’ del terreno, haciendo de la vivienda más una intervención en el territorio que un elemento independiente en el paisaje.
Construye asimismo un edificio cilíndrico con un auditorio y una galería acristalada en El recinto del centro comercial Silo Norte, en Oporto en 1998.
Una espiral se enrosca a su alrededor desde el suelo hasta la cubierta.
Realiza en colaboración con Siza El pabellón portugués de la Expo 2000 de Hannover.
En ponte de Lima, Portugal entre 2001-2002, Souto de Lima propone dos variaciones sobre el tema vivienda en pendiente.
Una de ellas resalta a modo de gran cuadrado y se sostiene sobre una construcción invisible en forma de Z.
La otra casa da la impresión de estar derribada.
En realidad, tras su blanca fachada se esconde un edificio escalonado de dos plantas cuyos frentes de ventanas no se ven, aunque superan el muro de circunvalación.
Las ventanas de la Casa do Cinema en Oporto (1998-2002) que sobresalen formando ángulos oblicuos, tienen su origen en los ejes visuales que transcurren entre los bloques residenciales cercanos.
Casa do Cinema en Oporto (1998-2002)Vivienda en Cascais (1994-2002).Museo Casa das Historias Paula Rego o Casa de los Cuentos en Cascais (2006).Museo Casa das Historias Paula Rego o Casa de los Cuentos en Cascais (2006).Estadio Municipal de Braga (1997-2004).Estadio Municipal de Braga (1997-2004).Estadio Municipal de Braga (1997-2004).Torre de pisos en Burgos (2007).
GAZEY Katja, GOSSEL Peter, MULLIO Cara, RAMLOW Uwe, ROCCELLA Graziella, SCHICKLER Eva, SIRYNG Ebenhard, UNGER Lisa. Arquitectura moderna de la A a la Z. Tachen. Biblioteca Universalis. Colonia, 2007.
Licenciada en Bellas Artes, FilologÍa Hispánica y lIiteratura Inglesa.
Ver más entradas
2 comentarios sobre “Souto de Moura, Casa en Moledo, Portugal”
Hola, Ila:
Un artículo excelente, he llegado hasta aquí por casualidad, pero no podía pasar sin comentarlo. Da verdadero gusto leer e ir veiendo el cariño y la dedicación con la que está escrito. Mi más sincera enhorabuena (de parte de mi equipo también). Un saludo y esperamos ver más artículos como este.
Gracias por tu comentario. Hago un día de pintura y otro de arquitectura, he de decirte que yo también me he quedado sorprendidísima de la obra que tiene. Se que los portugueses tienen muchísima clase, pero pensaba de este hombre que era solo un discípulo de un grande, Álvaro Siza y que equivocada estaba. La primera que aprendo soy yo.
Hola, Ila:
Un artículo excelente, he llegado hasta aquí por casualidad, pero no podía pasar sin comentarlo. Da verdadero gusto leer e ir veiendo el cariño y la dedicación con la que está escrito. Mi más sincera enhorabuena (de parte de mi equipo también). Un saludo y esperamos ver más artículos como este.
Me gustaLe gusta a 1 persona
Gracias por tu comentario. Hago un día de pintura y otro de arquitectura, he de decirte que yo también me he quedado sorprendidísima de la obra que tiene. Se que los portugueses tienen muchísima clase, pero pensaba de este hombre que era solo un discípulo de un grande, Álvaro Siza y que equivocada estaba. La primera que aprendo soy yo.
Me gustaMe gusta