

El proyecto surge como reflexión sobre las condiciones climáticas de la costa peruana, las características geográficas de la costa en la que se ubica la vivienda y las necesidades del cliente.

Entre la Cordillera de los Andes y el océano existe una franja larga y delgada de desierto polvoriento de color pardo, casi al nivel del mar.

Aunque el desierto peruano es uno de los más áridos del mundo, su clima no es extremo. Las temperaturas oscilan entre los 14°C (mínima en invierno) y los 29°C (máxima en verano), con muy pocas variaciones entre el día y la noche debido a un alto porcentaje de humedad.


A pesar de esto, para habitar el desierto sin negarlo o traicionarlo es esencial domesticar el orden de este paisaje.


La clave es crear la intimidad necesaria para vivir, al mismo tiempo de integrar la vivienda.

Se inicia el proceso de diseño imaginando un volumen abstracto y simple cuyos límites están definidos por las normas de construcción.







Luego, excavamos este sólido teórico, eliminando la materia poco a poco, al igual como los arqueólogos extraen arena para descubrir las ruinas precolombinas en la región.

El resultado es la fusión de los espacios exteriores e interiores en un espacio fluido y continuo al interior de un borde.

Este borde divide el espacio absoluto e infinito del desierto de los espacios íntimos de la vivienda.

Desde este borde, bien definido pero permeable, el paisaje y el cielo están enmarcados de diferentes maneras.

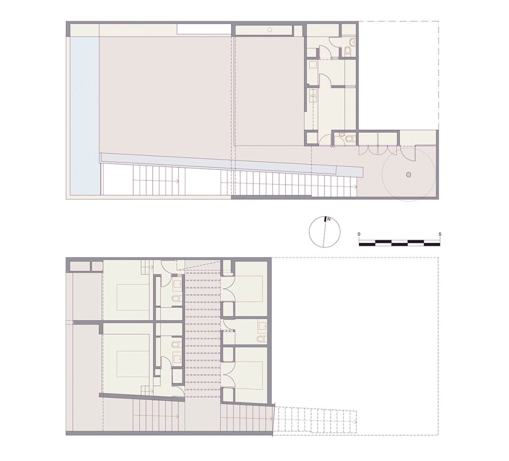
El patio de acceso conduce al espacio íntimo de la casa.

Este espacio se extiende hacia el océano a través de una gran terraza. Esta terraza se concibe como una playa artificial que se relaciona con el océano por una piscina larga y estrecha.

El techo del salón/comedor se concibe como una sombrilla de playa ingrávida, anclada al borde. Los límites entre el espacio de estar/comedor y la terraza se borran de forma natural mediante paneles deslizantes de vidrio sin marco.

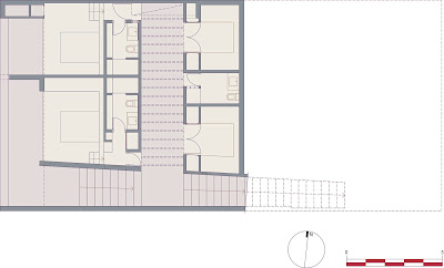
Una escalera abierta sigue la topografía natural y conduce al nivel del dormitorio debajo de la terraza. Las habitaciones de los niños son accesibles a través un patio/pérgola, cubierta por la terraza. El dormitorio de los padres se ubica al final de la escalera, pasando por debajo de la piscina suspendida.

El uso del color ocre/arena, utilizado también en casas precolombinas y coloniales, impide que el edificio envejezca visualmente, ya que reúne capas de polvo del desierto y refuerza la sensación de unidad del volumen excavado.

La distancia entre nuestra oficina en París y el sitio del proyecto en Perú, lleva a racionalizar el sistema de construcción, eliminando los detalles que parecían no ser esenciales.

https://arquitecturaviva.com/obras/casa-equis-canete
https://blog.inmobilia.com/estilo-de-vida/estructuras-increibles/casa-equis/
http://www.barclaycrousse.com/equis-house
https://habitar-arq.blogspot.com/2010/08/casa-equis.html
https://www.taringa.net/+arquitecturachilena/casa-equis-barclay-and-crousse-canete-peru_248z6t
https://youtu.be/xeQNO0ZLR3g (este)
