Joao Vilanova Artigas

Admiro a los poetas. lo que ellos dicen con dos palabras, nosotros tenemos que expresarlos con miles de ladrillos.

João Vilanova Artigas (Curitiba 1915-São Paulo 1985), arquitecto brasileño maestro de la llamada Escuela de São Paulo, adopta el hormigón armado como lenguaje plástico y constructivo a partir de finales de los 1950.

Estudia arquitectura e ingeniería en la Escuela Politécnica de USP de Sao Paulo.

Durante su carrera adquiere experiencia práctica en varios despachos.

1937 se licencia.

Trabaja para Gregori Warchavchik.

Vilanova Artigas ejerce como docente en 1941-1947 en la Universidad de Sao Paulo.

Joao Vilanova Artigas, su casa

1948 es miembro fundador de la nueva titulación de arquitectura y reforma a fondo la carrera en los años 60.

Joao Vilanova Artigas, Casa Czapski, 1949

1980 puede volver como consejero.

Esta considerado como un arquitecto líder de la Escuela de Sao Paulo.

El bloque de apartamentos de Louveira en Plaça Vilaboim, Sao Paulo 1946-1949, forma una pequeña plaza en medio de edificios estrechos de siete u ocho pisos.

João Vilanova Artigas, Edificio Louveira
João Vilanova Artigas, Edificio Louveira

El espacio que queda bajo de los cuerpos arquitectónicos elevados varios metros sobre el suelo mediante pilotes se utiliza como aparcamiento.

Edificio Louveira. Pocos barrios tienen un conjunto de arquitecturas residenciales modernas de tan alta calidad como Higienópolis. Obras de Vilanova ArtigasArtacho Jurado, Rino Levi, entre muchos otros arquitectos prominentes, coexisten con palacios históricos entre sus calles arboladas. La subdivisión planificada fue la primera en recibir iluminación a gas, arborización, líneas de tranvía, redes de agua y alcantarillado en la ciudad de São Paulo. Y, debido a que se encuentra principalmente en cotas más altas, estaba libre de inundaciones y menos propenso a la contaminación por enfermedades como la fiebre amarilla, el tifus y la malaria. Originalmente ocupado por la aristocracia de São Paulo, sigue siendo un barrio muy valorado al igual que buscado. Especialmente entre los años 40 y 50, varios lotes fueron ocupados por edificios modernos de alto diseño, calidad constructiva y espacios generosos.

El muro de cortina de fachada es de tablilla de madera para protegerlo del sol.

Edificio Louveira

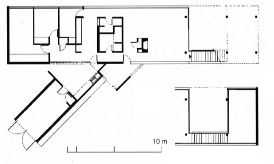
La casa del arquitecto de Sao Paulo de 1949, muy personal, esta caracterizado por el uso de hormigón y cristal.

La segunda Casa de Vilanova Artigas construida en 1949 en el mismo terreno que la primera residencia del arquitecto (1942) en Sao Paulo, está situada al fondo del solar, dentro de un jardín.
Concebida como un volumen lineal, presenta una cubierta inclinada a dos aguas hacia dentro que genera una gran altura libre en la sala de estar y una segunda planta en el extremo del edificio, donde se ubicó un estudio. Apoyado sobre pilotis, este espacio vidriado cubre una pequeña terraza que realiza una transición sutil entre los espacios interiores y los exteriores de la casa.
Inspirado en la levedad aérea de la arquitectura carioca, este proyecto mantiene, sin embargo, algunas de las referencias wrightianas de la primera casa, como la obra de fábrica de ladrillo visto (sólo pintada), y la organización de la convivencia en torno a centros generadores de calor, como la chimenea y la cocina. Es interesante observar que, a pesar del dominio de las superficies de vidrio, que confieren a la casa un carácter extrovertido, la sala de estar está protegida por paredes bajas y se orienta visualmente hacia el estudio y la terraza del fondo.

El tejado asciende hacia el cielo y posee dos grandes ventanales y elevado sobre la terraza esta el estudio de arquitectura.

1960 proyecta dos escuelas en Sao Paulo en colaboración con Carlo Cascaldi, una en Guarulhos y otra en Itanhaém.

Joao Vilanova Artigas, Escuela de Guarulhos
Joao Vilanova Artigas, Escuela de Guarulhos
Joao Vilanova Artigas, Escuela de Guarulhos
Joao Vilanova Artigas, Escuela de Guarulhos
Joao Vilanova Artigas, Escuela de Guarulhos
Joao Vilanova Artigas, Escuela de Guarulhos
Joao Vilanova Artigas, Escuela de Guarulhos
Joao Vilanova Artigas, Escuela de Guarulhos
Joao Vilanova Artigas, Escuela de Guarulhos
Joao Vilanova Artigas, Escuela de Guarulhos
Joao Vilanova Artigas, Escuela de Guarulhos

La última marca el principio del brutalismo en su discurso, apreciable en la estructura de hormigón que sobresalen por el lado del frontal aproximadamente, medio metro sobre el tejado.

João Vilanova artigas, Escuela de Itanhaém.
João Vilanova artigas, Escuela de Itanhaém.
João Vilanova artigas, Escuela de Itanhaém.
João Vilanova artigas, Escuela de Itanhaém.
João Vilanova artigas, Escuela de Itanhaém.
João Vilanova artigas, Escuela de Itanhaém.
João Vilanova artigas, Escuela de Itanhaém.
João Vilanova artigas, Escuela de Itanhaém.
João Vilanova artigas, Escuela de Itanhaém.
João Vilanova artigas, Escuela de Itanhaém.
João Vilanova artigas, Escuela de Itanhaém.
João Vilanova artigas, Escuela de Itanhaém.
João Vilanova artigas, Escuela de Itanhaém.
João Vilanova artigas, Escuela de Itanhaém.
João Vilanova artigas, Escuela de Itanhaém.
João Vilanova artigas, Escuela de Itanhaém.
João Vilanova artigas, Escuela de Itanhaém.
João Vilanova artigas, Escuela de Itanhaém.
João Vilanova artigas, Escuela de Itanhaém.
João Vilanova artigas, Escuela de Itanhaém.

La escuela de Guarulhos está concebida bajo el exterior como en el interior con colores primarios.

Joao Vilanova Artigas, Escuela de Guarulhos

Es característico el uso de recursos cromáticos junto con otros elementos arquitectónicos en los edificios a los que además añade amplias salas.

Joao Vilanova Artigas, Estación de Jau

En su última época erige una serie de construcciones públicas, desde una piscina hasta un museo de arte

Joao Vilanova Artigas, Trampolín 1960

.

Joao Vilanova Artigas, Estación de Jau
Joao Vilanova Artigas, Facultad de Arquitectura y Urbanismo. Universidad de Sao Paulo
Joao Vilanova Artigas, Conjunto Habitacional Zezinho Magalhães Prado
Joao Vilanova Artigas, Estación de Jau
Joao Vilanova Artigas, Facultad de Arquitectura y Urbanismo. Universidad de Sao Paulo
Joao Vilanova Artigas, Facultad de Arquitectura y Urbanismo. Universidad de Sao Paulo
Joao Vilanova Artigas, Facultad de Arquitectura y Urbanismo. Universidad de Sao Paulo
Joao Vilanova Artigas, Facultad de Arquitectura y Urbanismo. Universidad de Sao Paulo
Joao Vilanova Artigas, Facultad de Arquitectura y Urbanismo. Universidad de Sao Paulo
Joao Vilanova Artigas, Facultad de Arquitectura y Urbanismo. Universidad de Sao Paulo
Joao Vilanova Artigas, Facultad de Arquitectura y Urbanismo. Universidad de Sao Paulo
Joao Vilanova Artigas, Facultad de Arquitectura y Urbanismo. Universidad de Sao Paulo
Joao Vilanova Artigas, Facultad de Arquitectura y Urbanismo. Universidad de Sao Paulo
Joao Vilanova Artigas, Facultad de Arquitectura y Urbanismo. Universidad de Sao Paulo
Joao Vilanova Artigas, Facultad de Arquitectura y Urbanismo. Universidad de Sao Paulo
Joao Vilanova Artigas, Facultad de Arquitectura y Urbanismo. Universidad de Sao Paulo
Joao Vilanova Artigas, Facultad de Arquitectura y Urbanismo. Universidad de Sao Paulo
Joao Vilanova Artigas, Facultad de Arquitectura y Urbanismo. Universidad de Sao Paulo
Joao Vilanova Artigas, Facultad de Arquitectura y Urbanismo. Universidad de Sao Paulo
Joao Vilanova Artigas, Facultad de Arquitectura y Urbanismo. Universidad de Sao Paulo

https://es.wikipedia.org/wiki/Jo%C3%A3o_Batista_Vilanova_Artigas

https://www.plataformaarquitectura.cl/cl/935018/edificios-de-higienopolis-ilustrados-por-fabrizio-lenci

https://www.metalocus.es/es/autor/vilanova-artigas

https://www.urbipedia.org/hoja/Escuela_de_secundaria_de_Guarulhos

https://www.urbipedia.org/hoja/Jo%C3%A3o_Vilanova_Artigas

2G 54 Joao Vilanova Artigas

https://www.facebook.com/Jo%C3%A3o-Vilanova-Artigas-145905858799863/

https://www.urbipedia.org/hoja/Casa_Vilanova_Artigas_II

Publicado por ilabasmati

Licenciada en Bellas Artes, FilologÍa Hispánica y lIiteratura Inglesa.

Deja un comentario