

¿Cómo comprender el arte y la gloria de su historia sin la espiritualidad religiosa y sin el trasfondo mítico que nos lleva hasta las raíces mismas del fenómeno artístico? Sin lo uno y lo otro no habría pirámides de Egipto y las nuestras mexicanas; no habría templos griegos ni catedrales góticas ni los asombros que nos dejó el renacimiento y la edad barroca; no las danzas rituales de los mal llamados pueblos primitivos ni el inagotable tesoro artístico de la sensibilidad popular de todas las naciones de la Tierra.
Luis Barragán

En proporción alarmante han desaparecido en las publicaciones dedicadas a la arquitectura las palabras belleza, inspiración, embrujo, magia, sortilegio, encantamiento y también las de serenidad, silencio, intimidad y asombro. Todas ellas han encontrado amorosa acogida en mi alma, y si estoy lejos de pretender haberles hecho plena justicia en mi obra, no por eso han dejado de ser mi faro
Luis Barragán, discurso de aceptación del premio Pritzker

Queríamos que el proyecto lo hiciera Barragán, pero no teníamos dinero, así que fuimos a su oficina a hablar con él.


Él accedió gustosamente no solamente a hacer el proyecto, sino a financiar parte de su construcción.

Nosotras no sabíamos qué estaba haciendo, confiamos completamente en él.

Hasta que una mañana de primavera, el 24 de abril de 1960 se inauguró la capilla.

Fue para nosotras sorprendente, bellísima, muy austera, casi sin imágenes, adelantándose al Concilio Vaticano II.

Hasta aquí llegó Tadao Ando comenta la religiosa y quedó maravillado por el efecto de la luz.

Ando como Gehry y Koolhaas, han reconocido la fascinación y la influencia de esta obra y el trabajo de Barragán en sus propias obras.


El proyecto de ampliación de la Capilla y Convento de las Capuchinas Sacramentarias, inaugurada el año 1960, es obra del arquitecto mexicano Luis Barragán.

No solo accede a hacer el trabajo gratis, sino que también financia parte de su construcción.

Durante 7 años se dilata la ejecución de la obra, el arquitecto conforma infinidad de detalles que hacen peculiar el proyecto.

Le caracteriza un expresivo carácter tectónico de los materiales, un buen manejo de la luz y un minucioso tratamiento del espacio.

La capilla sorprende con juegos de colores con luces y sombras.

La capilla sorprende con juegos de colores con luces y sombras.

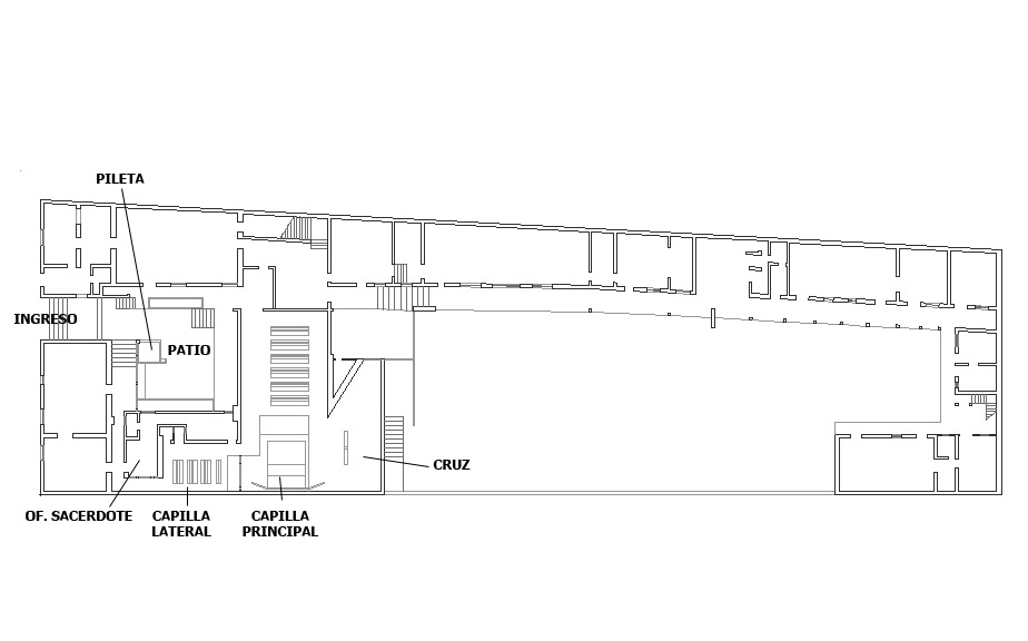
El primer espacio de recepción es un pequeño patio semi hundido, con muros blancos.

Hay una pila, en cuyas aguas flotan flores blancas, y a su derecha se encuentra una celosía amarilla, que se refleja en esta agua sobre la piedra negra.

En el otro extremo de la pileta, se encuentra el acceso a la capilla principal, junto a una pequeña escalera de piedra.


En este espacio se destaca una banca larga y muy simple que pareciera flotar perpendicular a la pared.

En el interior del espacio se utiliza un vidrio de color rosado, que ilumina el ambiente.

Hacia un lado, se encuentran las áreas privadas del convento, dispuesto sobre un terreno alargado, y hacia el otro se ingresa lateralmente a la capilla.

La luz, que atraviesa unos vidrios amarillos ubicados en una trama en el coro, inunda al espacio de un color acaramelado, y presenta una capilla austera, con paredes de texturas toscas y de colores ocres intensos.

Los pisos son de madera y en el altar se destaca el trabajo escultórico de los rectángulos dorados diseñados por Mathías Goeritz.

En el costado izquierdo se ubica una cruz de madera iluminada indirectamente desde un ventanal alargado.


Al costado derecho, separado por una celosía de madera en forma de grilla de color blanco, se encuentra una capilla lateral que suele ser utilizada por las familias de las monjas.

Desde una rendija superior la luz inunda el ambiente, mientras se descubre la triple altura de los muros, dándole monumentalidad a la obra.

Finalmente cabe destacar los pequeños detalles, como una ventana cuya luz amarilla se refleja sobre el muro de madera, o el mobiliario y las puertas.

http://moleskinearquitectonico.blogspot.com/2008/08/capilla-de-las-capuchinas-barragn.html

Gracias por compartir estas imágenes y explicaciones sobre esta maravillosa capilla. ¡Feliz Navidad!
Me gustaMe gusta
Gracias a ti por ser tan amable y estar aquí. Volveré a Barragán porque es de los grandes y enamora además. Feliz año
Me gustaMe gusta