












Can an artist of our time condition himself to the point of believing that he is prepared to debate with a Juvara, with a Fontana, with a Gagliori about the details of a cornice, the elegance of a partition, the suitability of a material or the choice of one color, of which he is only conscious of cold and scientific erudition, while for the others it is life, warmth, instinctive passion?

After completing his training at the Como Technical School, Giuseppe Terragni (1904-1943) studied at the Milan Polytechnic and in 1927, together with his brother Attilio, opened an architecture office in Como.

Together with Luigi Figini and Gino Pollini, Sebastiano Larco, Ubaldo Castagnoli, Guido Frette and Cario Enrico Rava he was the founder of Gruppo 7, which positioned itself in favor of a rational contemporary Italian architecture.

The same year he showed his renowned project for a gas plant at the Monza Biennale.

Against the massive resistance of traditionalists like Marcello Piacentini, he carried out the realization of the five-story residential complex Novocomum in Como, Italy (1927-1929), whose austerity is broken with a constructivist solution for the corner of the building.

In 1928 he joined the M.I.A.R.
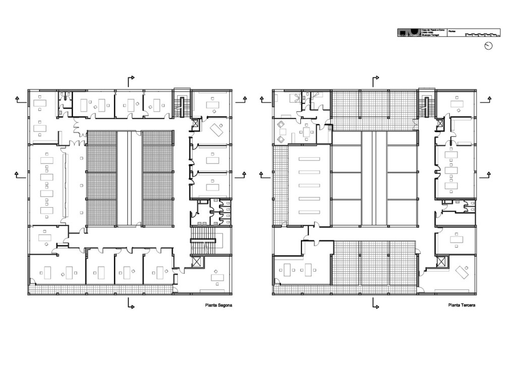
Terragni’s main work is considered to be the fascist party building (Casa del Fascio) in Como (1932-1936): a white marble parallelepiped with dramatic effects of light and shadow in the geometric hatches of the façade.
For the V Milan Triennial, he performed in 1933 together with other architects of the M.I.A.R. an artist’s house by a lake.
In 1934-1935 he created a commemorative monument commissioned by Margherita Sarfatti for her son who fell in war, whose formal laconism responds to the rationalist spirit. In 1936 he built the Antonio Sant’Elia nursery in Como and in 1935-1937 the Villa Bianchi in Rebbio. With Pietro Lingeri he also created the Rustid house (1933-1936) and the Lavezzari house (1934-1937), both in Milan.
With Lingeri he also worked on the Danteum project in Rome, whose spatial distribution responds to the chapters of the Divine Comedy and is thought to provoke similar feelings.
He projected another House of Fascism with Antonio Carminati in 1938 for the city of Lissone.
The Frigerio de Como house (1939-1940) is considered Terragni’s last significant work.
Gössel, P. (2007). The A-Z of Modern Architecture (Vol. 1). Deutscher Taschenbuch Verlag.
https://arquitecturayempresa.es/noticia/giuseppe-terragni-la-casa-del-fascio
